︎
Projekte ︎
Neubau Kindergarten & Hort Regensdorf
Anbau MFH Roggwil
Neubau DGZ Volketswil
Ersatzneubau Wohnen Inwil
Altersheim Schärme Melchnau
Umbau EFH Langenthal
Umnutzung Farbgasse
Aufstockung WOLEG
Mehrfamilienhaus Olten
Einfamilienhaus Langenthal
Sanierung Amtshaus
Lines of Force
Praxisumbau
Emphatic Lines
KIDZ-Pavillon Derendingen
Stabwerk
Einfamilienhaus Aarburg
Poolhaus Langenthal
Aktuell ︎
Über uns ︎
BFR LAB Architekten GmbH
Farbgasse 58a, 4900 Langenthal
T 062 544 65 30,
info@bfrlab.ch
Mark
November 2021
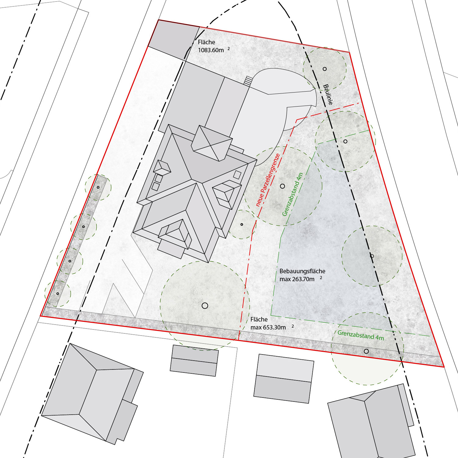
Bauland in Langenthal
Bauland in Langenthal zu verkaufen _ weiter Infos oder eine Dokumentation warten bei uns im Büro _ Kontakt: Matthias Frei
Index
Next︎