︎
Projekte ︎
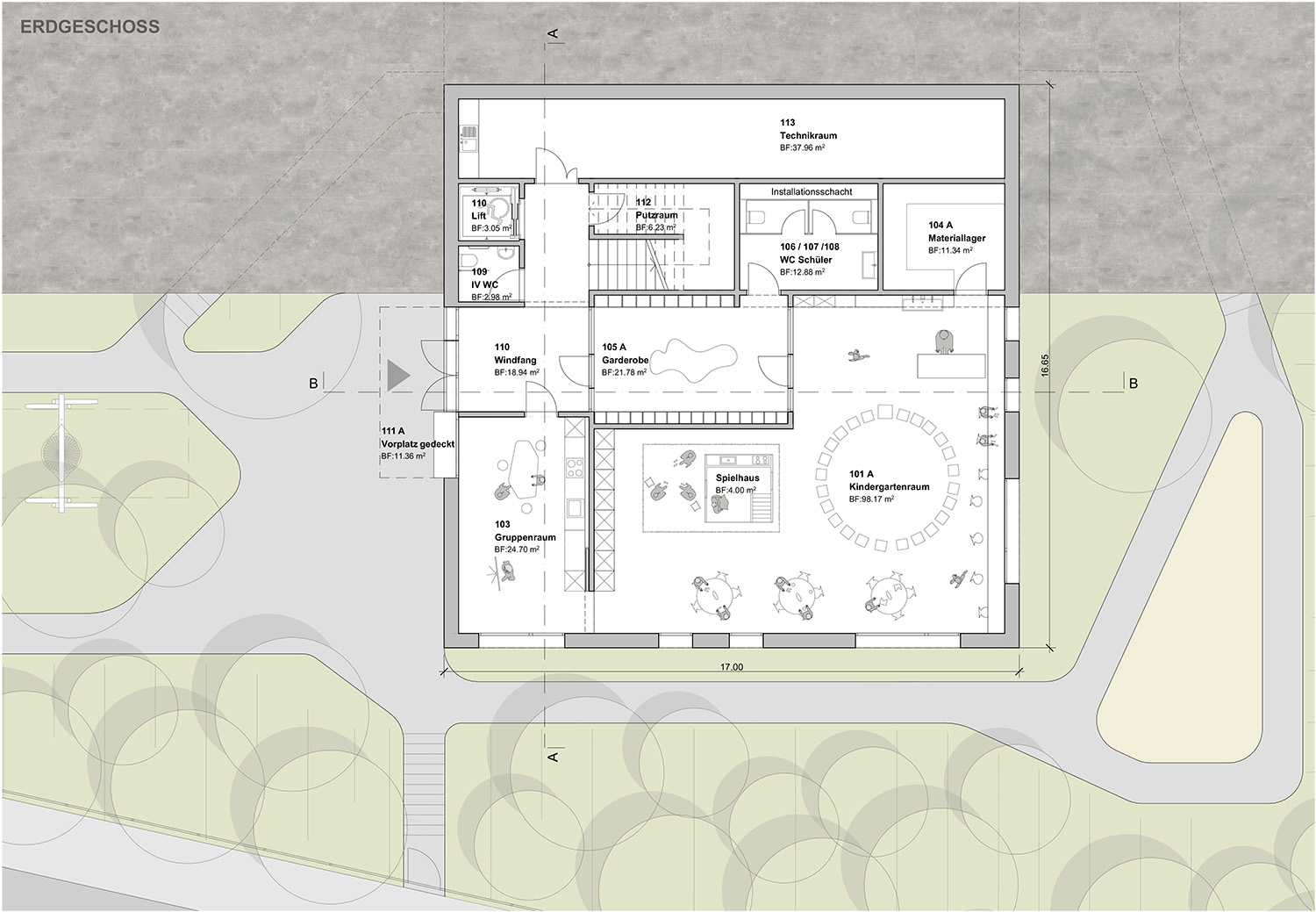
Neubau Kindergarten & Hort Regensdorf
Anbau MFH Roggwil
Neubau DGZ Volketswil
Ersatzneubau Wohnen Inwil
Altersheim Schärme Melchnau
Umbau EFH Langenthal
Umnutzung Farbgasse
Aufstockung WOLEG
Mehrfamilienhaus Olten
Einfamilienhaus Langenthal
Sanierung Amtshaus
Lines of Force
Praxisumbau
Emphatic Lines
KIDZ-Pavillon Derendingen
Stabwerk
Einfamilienhaus Aarburg
Poolhaus Langenthal
Aktuell ︎
Über uns ︎
BFR LAB Architekten GmbH
Farbgasse 58a, 4900 Langenthal
T 062 544 65 30,
info@bfrlab.ch
Mark
Februar 2023
Neubau Doppelkindergarten Letten
Wir freuen uns zusammen mit
schaerholzbau
und
david&vonarx landschaftsarchitektur
über den 3.Rang beim Wettbewerb für den Neubau Kindergarten in Letten.
Index
Next︎